Stanovi | S-I-1036 Zadar - Diklovac

Osnovne informacije

U prodaji je kvalitetan i moderan projekt novogradnje s pogledom na more, na odličnoj, mirnoj lokaciji u gradu Zadru, na području Diklovca.
Radi se o projektu višestambene zgrade (podrum, prizemlje, prvi i drugi kat, te krovnih terasa), koja se sastoji od 10 stambenih jedinica. Svakom stanu pripadaju 2 parkirna mjesta na okućnici zgrade, kao i jedno spremište u podzemnoj etaži. Pojedini stanovi u prizemlju imaju pripadajući dio vrta, a stanovi na drugom katu imaju krovne terase s prekrasnim pogledom na more i otoke.
Sve etaže zgrade od podruma do krovne terase su povezane liftom.
Završetak građevinskih radova planiran je do 07/2026., a ishođenje uporabne dozvole u  09/2026. godine.
Mogućnost uplate kapare 10 %, a ostatak isplate kreditom nakon ishođenja uporabne dozvole za objekt.
 
KARAKTERISTIKE I OPREMA ZGRADE:
Za grijanje stanova instalira se podno grijanje u dnevnom boravku i kupaonicama.
Klimatizacijski uređaji za hlađenje + grijanje postavljaju se u svim sobama.
Ugrađuje se kvalitetna vanjska PVC stolarija s troslojnim IZO-staklima i ALU roletama,  a ulazna vrata su protuprovalna / protupožarna.
Postoji mogućnost odabira podnih obloga (parketi i pločice) unutar zadanog budgeta ili nadoplata po vlastitom izboru - prema dogovoru s investitorom.
Na ulazu u zgradu biti će ugrađen video portafon.
 
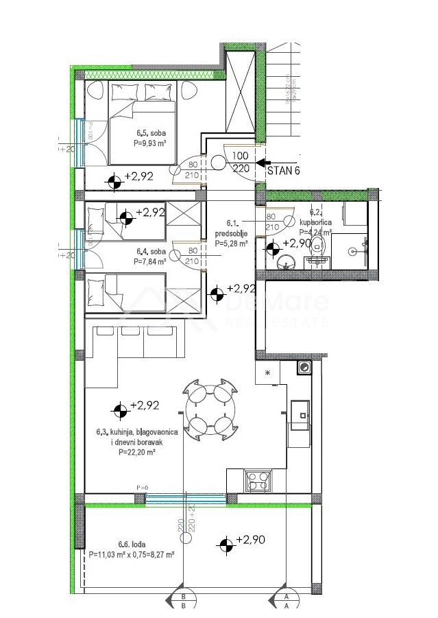
1. KAT - S6: Stan s 2 spavaće sobe i lođom
Stan se nalazi na prvom katu zgrade, a sastoji se od:
- Predsoblja / 5,28 m2,
- Dnevnog boravka s kuhinjom i blagovaonicom (open space) / 22,20 m2,
- 2 spavaće sobe / 9,93 m2 i 7,84 m2,
- kupaonice / 4,24 m2 i
- Lođe / 11,03 m2.
Unutarnja površina stana zauzima 49,40 m2.
Stanu također pripada jedno spremište (3,34 m2) u podrumu zgrade, a na okućnici su 2 vanjska parkirna mjesta (2 x 13,75 m2).
Ukupna korisna obračunska vrijednost površine stana iznosi 64,84 m2.
 
Za sve dodatne informacija slobodno nas kontaktirajte!
De Mare d.o.o.
Tel: +385 23 300 400
Mail: info@demare.hr
 
 
LOKACIJA:
Lokacija objekta je odlična zbog blizine mora i plaže cca. 650 m, udaljenost do centra grada je cca. 3 km, a od zračne luke Zemunik je cca. 17 km.
Diklovac je smješten odmah iznad Dikla koje slovi kao elitni dio grada Zadra, a smješteno je uz samu obalu s obiljem smještaja za odmor, restorana, barova i trgovina. Duga lokalna šetnica na kojoj je uređena plaža, vodi prema lokalnoj marini, a sa šljunčane obale pruža se prekrasan pogled na otoke zadarskog arhipelaga.
 
 

Opis

Šifra S-I-1036
Tip prodaja - stan
Podtip Stan u zgradi
Država Hrvatska
Županija Zadarska
Grad Zadar
Općina Zadar
Kvart Diklovac
Ukupna cijena 272.328 EUR
Cijena po m2 4.200 EUR
Površina 64.84 m2
Udaljenost od mora 650 m
Udaljenost od centra 3000 m
Broj soba 3
Broj kupaonica 1
Kat 1
Godina izgradnje 2026
Stanje Novogradnja,U izgradnji
Dodatni prostor
  • Blagovaona
  • Dnevni boravak
  • Hodnik
  • Kuhinja
  • Kupaona
  • Loggia
  • Parking
  • Spavaća soba
  • Spremište
Infrastruktura
  • Gradski vodovod
  • Struja
Opis
  • Miran predio
  • Pogled na more
  • Pogled na more djelomičan
  • Prilaz - asfaltirani
  • Projektna dokumentacija
  • Velika terasa
  • Velike staklene stijene

Stan u zgradi

64.84 m2
S-I-1036
Cijena
272.328 EUR

Zanima vas ova nekretnina?

Kontaktirajte nas!

+385 23 300 400

info@demare.hr


Radno vrijeme:
Pon-Pet 8-16 sati i po dogovoru.

NAPOMENA! Ova stranica koristi kolačiće i slične tehnologije.

Ukoliko ne promijenite postavke preglednika, prihvaćate kolačiće. Saznaj više

Prihvaćam

Uporaba kolačića

Kako bi ova web stranica radila pravilno, kako bismo bili u stanju vršiti daljnja unaprjeđenja stranice, u svrhu poboljšavanja vašega iskustva pregledavanja, ova stranica mora na vaše računalo spremiti malenu količinu informacija ( Cookies ) . Preko 90 % svih web stranica koristi ovu praksu no prema regulacijama Europske unije od 25.03.2011. obvezni smo prije spremanja Cookie-a zatražiti vaš pristanak. Korištenjem web stranice pristajete na uporabu Cookie-a. Blokiranjem cookie i dalje možete pregledavati stranicu, no neke njezine mogućnosti Vam neće biti dostupne. 

Što je kolačić?
Kolačić je informacija spremljena na Vaše računalo od strane web stranice koju posjetite. Kolačići obično spremaju Vaše postavke, postavke za web stranicu, kao što su preferirani jezik ili adresa. Kasnije, kada opet otvorite istu web stranicu internet preglednik šalje natrag kolačiće koji pripadaju toj stranici. Ovo omogućava stranici da prikaže informacije prilagođene Vašim potrebama.

Kolačići mogu spremati širok pojas informacija uključujući osobne informacije (kao što je Vaše ime ili e-mail adresa). Ipak, ova informacija može biti spremljena jedino ako Vi to omogućite - web stranice ne mogu dobiti pristup informacijama koji im Vi niste dali i ne mogu pristupiti drugim datotekama na Vašem računalu. Zadane aktivnosti spremanja i slanja kolačića Vama nisu vidljive. Ipak, možete promjeniti Vaše postavke internet preglednika da možete sami birati hoćete li zahtjeve za spremanje kolačića odobriti ili odbiti, pobrišete spremljene kolačiće automatski pri zatvaranju internet preglednika i slično.

Kako onemogućiti kolačiće
Isključivanjem kolačića odlučujete da li hoćete dopustiti pohranjivanje kolačića na vašem računalu. Cookie postavke mogu se kontrolirati i konfigurirati u vašem web pregledniku. Za informacije o postavkama kolačića, odaberite web-preglednik koji koristite. • Chrome • Firefox • Internet Explorer 9 • Opera (stranica na engleskom jeziku) • Safari (stranica na engleskom) Ako onemogućite kolačiće, nećete moći koristiti neke od funkcionalnosti na web stranicama

Što su privremeni kolačići?
Privremeni kolačići ili kolačići sesije uklanjaju se s računala po zatvaranju internet preglednika. Pomoću njih web-mjesta pohranjuju privremene podatke, poput stavki u košarici za kupnju.

Što su stalni kolačići?
Stalni ili spremljeni kolačići ostaju na računalu nakon zatvaranja programa internet preglednika. Pomoću njih web-mjesta pohranjuju podatke, kao što su ime za prijavu i lozinka, tako da se ne morate prijavljivati prilikom svakog posjeta određenom mjestu. Stalni kolačići ostat će na računalu danima, mjesecima, čak i godinama.

Što su kolačići od prve strane?
Kolačići od prve strane dolaze s web-mjesta koje gledate, a mogu biti stalni ili privremeni. Pomoću tih kolačića web-mjesta mogu pohraniti podatke koje će ponovo koristiti prilikom sljedećeg posjeta tom web-mjestu.

Što su kolačići treće strane?
Kolačići treće strane dolaze s reklama drugih web-mjesta (kao što su skočne ili druge reklame) koje se nalaze na web-mjestu koje gledate. Pomoću tih kolačića web-mjesta mogu pratiti korištenje Interneta u marketinške svrhe.

Da li demare.hr koristi kolačiće?
Da, s primarnim ciljem kako bi naše web stranice vam omogućile bolje korisničko iskustvo.

Kakve kolačiće koristi demare.hr i zašto

Da li na web stranici ima kolačića treće strane?
Ima nekoliko vanjskih servisa koji korisniku spremaju limitirane kolačiće. Ovi kolačići nisu postavljeni od strane ove web stranice, ali neki služe za normalno funkcioniranje određenih mogućnosti koje korisnicima olakšavaju pristup sadržaju. Trenutno omogućujemo:

Dodatne informacija oko isključivanja kolačića
Trenutno postoji nekoliko web stranica za isključivanje pohranjivanja kolačića za različite servise.

Više se možete informirati na sljedećim linkovima: